第99期
-Xiao Bian Tan Jia-
项目详情
小区:笛里人家
面积:80 平方
风格:奶油风
费用:全包18万
装修公司:东锦装饰
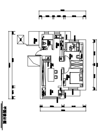
平面图:

效果图:




这一次来的是小户型的学区房
所以客厅改成了学习的区域
会彰显空间比较大
满墙的大书柜
也预示着家长对孩子的美好期待



阳台与客厅直接没有隔断
所以整个空间会显得更大



厨房做的是开放式厨房
所以选择了吸力更大的集成灶


卫生间做了干湿分离
这边可以增加早上的使用效率





次卧是专属于孩子的空间



主卧也很简单舒适




本次探家之旅就这么结束了
如果你也想找东锦装修
那就抓紧来联系小编哦~


第98期:140方现代灰色轻奢系全包31.5w,干净又清爽~https://www.e0575.cn/read.php?tid=11822871&ds=1#tpc
第97期: 橡木染色的五层排屋原木风,温馨舒适现代感十足~https://www.e0575.cn/read.php?tid=11808868
第96期:用色超大胆的糖果色的年轻人的婚房~https://www.e0575.cn/read.php?tid=11781240
第95期:125方现代轻奢风全包28万~奢意十足~https://www.e0575.cn/read.php?tid=11771294&ds=1#tpc
第94期:70平原木现代风温馨小家,细节满满,心意满满~ https://www.e0575.cn/read.php?tid=11746015&ds=1#tpc
第93期:109方甜甜的奶油风,来了就不想走,重点仅花16.5万!https://www.e0575.cn/read.php?tid=11743622
第92期:半包10万打造现代轻奢舒适的家~https://www.e0575.cn/read.php?tid=11741601
第91期:25.6万拎包入住,打造106方现代风格四室小屋!https://www.e0575.cn/read.php?tid=11732900&ds=1#tpc
第90期:极具温馨轻奢的130方小屋,来了就爱上系列~ https://www.e0575.cn/read.php?tid=11731443
第89期:半包13万打造现代轻奢的具有格调的天工名爵府138方https://www.e0575.cn/read.php?tid=11730148
第88期:115方三居室精装改造现代轻奢风仅需15万!https://www.e0575.cn/read.php?tid=11729158
第87期:府山西路上的这个学区房,仅仅只花了13万就改造完成!https://www.e0575.cn/read.php?tid=11727804
第86期:118方兴望轩现代轻奢全包仅19.5万!https://www.e0575.cn/read.php?tid=11723483
第85期:镜湖90方湖风雅苑15.5万改造暖暖的奶油风~https://www.e0575.cn/read.php?tid=11713804&ds=1&page=1&toread=1#tpc
第84期:
第83期:极简大气的200方灰色大平层~努力做到效果图的一比一还原!https://www.e0575.cn/read.php?tid=11689423&ds=1#tpc
第82期:拥有钢琴的清爽薄荷轻奢小家~https://www.e0575.cn/read.php?tid=11670433
第81期:随处可见爱马仕橙店点缀空间的140方轻奢风~https://www.e0575.cn/read.php?tid=11689442&ds=1&page=1&toread=1#tpc
第80期:400方雅奢排屋,一个充满新中式的家https://www.e0575.cn/read.php?tid=11666034&ds=1#tpc
第79期:140平温柔满满的意式极简风~打造科技感十足的小家~https://www.e0575.cn/read.php?tid=11664816&ds=1#tpc
第78期:干净清爽极具现代极简的135方单身小屋~https://www.e0575.cn/read.php?tid=11640881
第77期:大大的落地窗,现代极简又轻奢的110方小屋,忍不住让大家瞅瞅https://www.e0575.cn/read.php?tid=11618236&ds=1&page=1&toread=1#tpc
第76期:120方现代轻奢风,浪漫即是雅致https://www.e0575.cn/read.php?tid=11602345&ds=1#tpc
第75期:年轻人喜欢的大沙发,大地毯来咯~简单又极致,重要的是装修仅25whttps://www.e0575.cn/read.php?tid=11597162
第74期:半包55万打造610方新中式偏轻奢,书意满满https://www.e0575.cn/read.php?tid=11574623&ds=1#tpc
第73期:180方法式轻奢大平层,温馨满满~https://www.e0575.cn/read.php?tid=11571375&ds=1&page=1&toread=1#tpc
第72期:320方轻松休闲日式风https://www.e0575.cn/read.php?tid=11570706&ds=1&page=1&toread=1#tpc
第71期:500方小美稽山庄园,丰富优雅的精致生活~https://www.e0575.cn/read.php?tid=11567336
第70期:京联观湖255方新中式 四壁浮影 有暗香盈https://mp.weixin.qq.com/s/e7JMCcmPHxCqjQ3qwhNqcA
第69期:380方极具现代感排屋展示,尽显轻奢https://www.e0575.cn/read.php?tid=11563103
第68期:柔情似水,佳居如梦!一家三代人的天堂https://www.e0575.cn/read.php?tid=11562130
第67期:23万打造87方温柔系现代风https://www.e0575.cn/read.php?tid=11556862&ds=1#tpc
第66期 : 暖色调现代风格,尽显温柔 https://www.e0575.cn/read.php?tid=11552401
第65期:探访格格家大城小院叠排新中式美学,感受小资生活! https://www.e0575.cn/read.php?tid=11543923&ds=1#tpc
第64期 :金地五期135方现代精致生活 https://www.e0575.cn/read.php?tid=11521185&ds=1#tpc
第63期 : 群贤府一家四口的现代轻奢风小家~https://www.e0575.cn/read.php?tid=11509074
第62期:书香,茶香,花香,咖啡香……一位退休教师亲手打造的https://www.e0575.cn/read.php?tid=11482151
第61期:520平法式别墅全曝光!!家庭影院,舞蹈房…应有尽有https://www.e0575.cn/read.php?tid=11473736
第60期:现代偏北欧系轻奢风,打造只属于自己的四口温馨之家https://www.e0575.cn/read.php?tid=11470634&ds=1&page=1&toread=1#175741265
第59期:现代原木系的极简风,添加懒人因素,总有你喜欢的点https://www.e0575.cn/read.php?tid=11470453&ds=1&page=e#a
第58期:小两口的轻奢风的小家,优雅又温馨!https://www.e0575.cn/read.php?tid=11462604&ds=1#tpc
第57期:灰色系现代风,去繁从简的家装,惬意从容的生活~https://www.e0575.cn/read.php?tid=11453760
第56期:幸府装饰出品现代灰色系140方~https://www.e0575.cn/read.php?tid=11446986&ds=1&page=1&toread=1#tpc
第55期:良工出品原木新中式风格,禅意净化心灵的世界!https://www.e0575.cn/read.php?tid=11444473&ds=1&page=1&toread=1#tpc
第54期:140方灰色系新中式风格!高级灰的另一种展现~https://www.e0575.cn/read.php?tid=11443305&ds=1&page=1&toread=1#tpc
第53期:原木现代北欧风,打造轻奢小家!https://www.e0575.cn/read.php?tid=11429151&ds=1&page=1&toread=1#tpc
第52期:26万打造全屋现代北欧风!干净清爽,一家三口刚刚好~https://www.e0575.cn/read.php?tid=11414588&ds=1&page=1&toread=1#tpc
第51期:携手实鼎装饰,36万打造欧式家居~https://www.e0575.cn/read.php?tid=11376651&ds=1&page=1&toread=1#tpc
第50期:127方原木现代风~满满的生活感!https://www.e0575.cn/read.php?tid=11369509&ds=1&page=1&toread=1#tpc
第49期:晴园215方现代轻奢风~低调中彰显奢华!!https://www.e0575.cn/read.php?tid=11363978&ds=1&page=1&toread=1#tpc
第48期:160平美式小家,有你,家才更美!http://www.e0575.cn/read.php?tid=11307005&ds=1&page=1&toread=1#tpc
第47期:生活需要低调,却不失精致!http://www.e0575.cn/read.php?tid=11304139
第46期:森海豪庭北欧混搭,小资生活从细节开始http://www.e0575.cn/read.php?tid=11295506&ds=1&page=1&toread=1#tpc
第45期:小家需要精致!生活需要仪式感!http://www.e0575.cn/read.php?tid=11285122&ds=1&page=1&toread=1#tpc
第44期:看一家全屋集成吊顶+集成墙面装出来的效果是怎么样的!!http://www.e0575.cn/read.php?tid=11275133
第43期:低调中的奢华,体验醇正美式~http://www.e0575.cn/read.php?tid=11257601&ds=1#tpc
第42期:锦水湾2层简美小屋,享受美好人生!http://www.e0575.cn/read.php?tid=11252087&ds=1&page=1&toread=1#tpc
第41期:百合花园 200方大平层 最潮北欧风!!http://www.e0575.cn/read.php?tid=11170303
第40期:香湖岛 160方大平层 全定制任性人生!http://www.e0575.cn/read.php?tid=11163136
第39期:曦之湖 115方 全包15万温馨小美风~http://www.e0575.cn/read.php?tid=11159873
第38期:观澜豪庭 141方 简约宜居,改善型首选!http://www.e0575.cn/read.php?tid=11157365
第37期:御河湾141方四房两厅,全实木家具,环保材料~彰显低调奢华~ http://www.e0575.cn/read.php?tid=11151999
第36期:现代与前卫想结合,装修趋势新理念~http://www.e0575.cn/read.php?tid=11134343&ds=1#tpc
第35期:金色水岸典雅奢华欧式,开启璀璨新征程~http://www.e0575.cn/read.php?tid=11131393
第34期:柯桥新贵,大平层,50万拎包入住!!http://www.e0575.cn/read.php?tid=11124409&ds=1#tpc
第33期:惬意生活,尽享简欧混搭璀璨人生~http://www.e0575.cn/read.php?tid=11106919&ds=1#tpc
第32期:别有洞天,二手房也可以惊艳绝伦!!http://www.e0575.cn/read.php?tid=11096903
第31期:舒适大平层,细节决定成败!http://www.e0575.cn/read.php?tid=11088983
第30期:未来主流,为北欧工业混搭风打call~~http://www.e0575.cn/read.php?tid=11072320&ds=1#tpc
第29期:洋气港风,宽敞大宅灵动开启~http://www.e0575.cn/read.php?tid=11066057
第28期:美式紧凑型两居室,美学与品质相并存~ http://www.e0575.cn/read.php?tid=11039261
第27期:城市中心1600方沿河别墅,无与伦比、至尊享受!!!http://www.e0575.cn/read.php?tid=11036328&ds=1#tpc
第25期:80后三室两厅,整体造价7.81万!!http://www.e0575.cn/read.php?tid=11032638
第24期:市中心观景别墅——翡翠园。现代港风,简约不凡。http://www.e0575.cn/read.php?tid=10974137&ds=1#tpc
第23期:三世同堂,宽敞大四居——百年经典2017开年第一发:http://www.e0575.cn/read.php?tid=10963133
第22期:安生设计|绍兴龙湖原著别墅|ANSWER DESIGN:http://www.e0575.cn/read.php?tid=5459574
第21期:又见新中式,城西第一高,带装逼带你飞,138方半包12.3万:http://www.e0575.cn/read.php?tid=5438360
第20期:贵胄之地,传世名邸——天御花园:http://www.e0575.cn/read.php?tid=5431180
第19期:地中海四季风情庄园:http://www.e0575.cn/read.php?tid=5424978
第18期:御景华庭北欧美式,周杰伦都忍不住转了!:http://www.e0575.cn/read.php?tid=5414729
第17期:香湖岛170平 欧美混搭+大气磅礴:http://www.e0575.cn/read.php?tid=5359343
第16期:镜湖百合花园160平欧式,三房一厅一厨两卫含衣帽间:http://www.e0575.cn/read.php?tid=5395875
第15期:绍兴天下花园140平欧式新古典,列品牌细数点滴经典!:http://www.e0575.cn/read.php?tid=5388985
第14期:金色水岸170平小美 | 天然木、石质朴纹路,别有格调:http://www.e0575.cn/read.php?tid=5328809
第13期 简美小清新,观澜豪庭85平小户型半包8万 :http://www.e0575.cn/read.php?tid=5314617
第12期:观澜豪庭128平20W装修 | 现代简约风:http://www.e0575.cn/read.php?tid=5281758
第11期:御景华庭141平欧式,别样古典雅致(内含清单获取方式):http://www.e0575.cn/read.php?tid=5274181
第10期:香湖岛141平16万半包欧式新古典 | 色搭好“色”好色好色!:http://www.e0575.cn/read.php?tid=5269279
第9期:海量图!恒联锦园三百多平的跃层全包|乡村软装混搭美学:http://www.e0575.cn/read.php?tid=5259347
第8期:江湾绿园大户型180平22万半包 |软装搭出欧式新古典 揭秘总费用:http://www.e0575.cn/read.php?tid=5250448
第7期: 坤和山水人家享现代奢华 :http://www.e0575.cn/read.php?tid=5209818
第6期:山水名家175平13万半包演绎新古典:http://www.e0575.cn/read.php?tid=5196713
第5期:山水名家173方美式风格共50万全包:http://www.e0575.cn/read.php?tid=5180619
第4期:岑草园240方带屋顶花园美式乡村共55万/ 缕缕春风贴意境:http://www.e0575.cn/read.php?tid=5122713
第3期:赞成香林140方40万含地暖和新风系统 | 北欧混搭新古典:http://www.e0575.cn/read.php?tid=5103387
第2期:长江越领140方23万全包 | 我迷何以笙箫默的北欧装修风:http://www.e0575.cn/read.php?tid=5075910
第1期:鼎盛世家141方90万欧式新古典风 | 路遇宫廷式的奢华:http://www.e0575.cn/read.php?tid=5069984
不错不错
好看的
我差不多的面积装修花了20多万
回 4楼(旧旧旧旧旧梦i) 的帖子 旧旧旧旧旧梦i:我差不多的面积装修花了20多万(2025-11-18 08:16)
装修这个没有底的
全包包括哪些
回 6楼(zjsxply) 的帖子 zjsxply:
全包包括哪些

其他装修上的问题,可以加一下小编微信哦

大家是否算过一个家庭一年的基本开支?

新国标电动车被吐槽,问题出在哪儿?

医院好,医生也真好!拔牙一次全部费用40元!这家三甲医院真不错

物价越来越高了

确认了!绍兴这里对全国游客免费!

小区东大门被车堵整夜!北海派出所处理态度有失公信力

这种恶习什么时候会没?

绍兴一女婿来求理:兄妹不和和父母不作为密不可分
爱情园里的新表达

确认了!已抵达绍兴,出门记得戴口罩

上虞一女婿求评理:老丈人把财产全给小舅子,现在要养老就想到我们…

绍兴街头两家零食店同步促销,出路何在?

本该是有作为的年龄

不少网友被“自动”扣钱了,绍兴人快查查你的支付宝

现在网约车出租车越来越便宜真的合理吗?
绍兴一小区业主怒了!窗外公共绿化带变自由田,开垦施肥越来越严重!

现在结婚的话,黄金一定要买吗?金价太高了…

违建业主被举报后怀恨在心恶意诬告

大学毕业被告知欠下百万债务,绍兴姑娘坚持10年终还清

群贤路镜湖石油加油站,加了车子报发动机故障。








