宝兴花园 买了几年的房子今年打算装修一下入住 改善一下生活品质 为了找个靠谱的装修公司腿都跑断了 去过有着漫天广告的公司 对比过华丽的套餐 龙马天下装修 一家朴实无华的公司 设计师的耐心 马老板的诚恳 让我选着了他
开工忘记了拍照



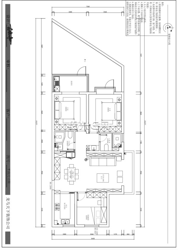
离厨房
广告打的好
回 第1楼(7个字的用户名)的帖子 7个字的用户名:冰箱? 离厨房 (2025-05-27 11:15)
厨房不大,冰箱在外面。
回 第1楼(7个字的用户名)的帖子 7个字的用户名:冰箱? 离厨房 (2025-05-27 11:15)
不是很正常嘛。多数在外边
回 第4楼(tl2159135)的帖子 tl2159135:不是很正常嘛。多数在外边 (2025-05-27 22:51)
日常使用冰箱?菜进门入冰箱,菜出冰箱入厨房
回 5楼(7个字的用户名) 的帖子 7个字的用户名:想象一下?日常使用冰箱?菜进门入冰箱,菜出冰箱入厨房(2025-05-28 07:49)
空间受限,只能做取舍
回 第5楼(7个字的用户名)的帖子 7个字的用户名:想象一下?日常使用冰箱?菜进门入冰箱,菜出冰箱入厨房 (2025-05-28 07:49)
想象毛线。套房厨房有多大,谁都想住别墅
回 第7楼(tl2159135)的帖子 tl2159135:想象毛线。套房厨房有多大,谁都想住别墅 (2025-05-29 06:32)




回 4楼(tl2159135) 的帖子 tl2159135:不是很正常嘛。多数在外边(2025-05-27 22:51)
哈哈哈 是的呢 放厨房的话有点挤,所以考虑挪出去
回 6楼(gd杀) 的帖子 gd杀:空间受限,只能做取舍(2025-05-28 09:06)
对的呢 我和家人也是商量了好久
回 8楼(7个字的用户名) 的帖子 7个字的用户名: (2025-05-29 09:45)
谢谢给意见,阳台那边特殊原因不能打柜,冰箱不能离灶台太近,烧菜会散发热量对冰箱不好,厨房间就想地柜多一些,收放方便点 ,



回 第11楼(tel208113)的帖子 tel208113:谢谢给意见,阳台那边特殊原因不能打柜,冰箱不能离灶台太近,烧菜会散发热量对冰箱不好,厨房间就想地柜多一些,收放方便点 , (2025-05-29 10:48)
就好
6月6号水电完工
遵循横平竖直,就近原则,厨卫水电走顶,顶部施工谁在下,电在上





防水做起来 墙面两遍地面三遍 主打一个牢靠



设计花了多少钱
回 18楼(567) 的帖子 567:
设计花了多少钱
需要装修报价可以加小编微信:

回 18楼(567) 的帖子 567:设计花了多少钱(2025-08-05 04:53)
设计没花钱 在龙马签单做的设计费给优惠了











回 22楼(tel208113) 的帖子 tel208113:6月26号瓷砖师傅进场开始铺地砖了 ,(2025-09-04 14:55)
看着快装修好了
回 23楼(昊海情殇) 的帖子 昊海情殇:看着快装修好了(2025-09-05 08:33)
是的,基本接近尾声了,有兴趣可以来参观一下哦

























回 28楼(tel208113) 的帖子 tel208113:乳胶漆做好,后面准备成品柜门 房门 厨柜 安装(2025-09-19 09:53)
柜子颜色有点深啊
回 第29楼(法国队f)的帖子 法国队f:柜子颜色有点深啊 (2025-09-22 08:41)
是的




























回 34楼(tel208113) 的帖子 tel208113:完美收官(2025-11-20 11:16)
恭喜恭喜
不错不错,效果挺好的,就手机像素低了一点
回 第35楼(雪怡双子)的帖子 雪怡双子:恭喜恭喜 (2025-11-21 08:31)
谢谢谢谢
该回复已被删除
不堵的
回 39楼(tel208113) 的帖子 tel208113:不堵的(2025-12-12 13:46)
20年前我现在住的房子也装了一个移位器,前面用着没问题,有一次下不去水,几天了想了很多办法都通不出来,后来拆开马桶一看,粑粑黏在移位器上面动不了,后来把移位器拆了就没有堵过了。




回 40楼(tel208113) 的帖子 tel208113:从毛坯到精装,从空荡到温馨,添上几株花草,家才算真正有了温度,往后好好生活,慢慢欣赏?(2026-02-02 10:52)
露台的花感觉有点少,要多种一点
老婆把单位发的年货大部分都拿回了娘家

我的收入

瓜渚湖梅花开爆

我爸妈从小就没有让我吃过苦凭什么和你结婚要吃苦
过年想出去玩怎么那么难?
上班了没买车是不是一种罪过?

绍兴博物馆今天开馆啦!

这个钱该出吗???
年底山姆超市生意真好

这种鱼应该是咱们绍兴人最喜欢吃的鱼了,因为它内质鲜嫩,价格又便宜

人生的后半生拼的是什么?

没有一段婚姻是丈母娘拆不散的
买车选油车、新能源电车

快过年了又赶上会员日,老婆大人人挤人

学区房的含金量还在提高
为什么总有一些人把会喝酒当本事
为什么都说年味淡了
老人用筷子沾酒喂给5月龄宝宝尝,致其近乎肝衰竭

都在唱衰楼市,但是1月买镜湖房子的人还是很多

E网撒红包啦!2026年绍兴年味大赏!








