小区:兴望轩19—301谢先生雅居
风格:宋式美学
面积:上叠200
户型:叠排
装修方式:半包
设计师:傅工

官方网站: http://thome.e0575.com/s81
直达电梯
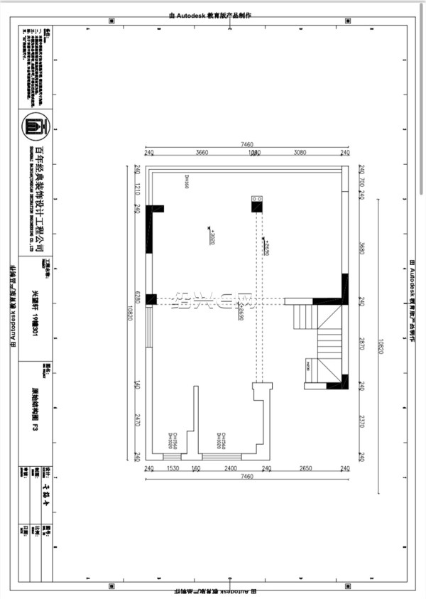
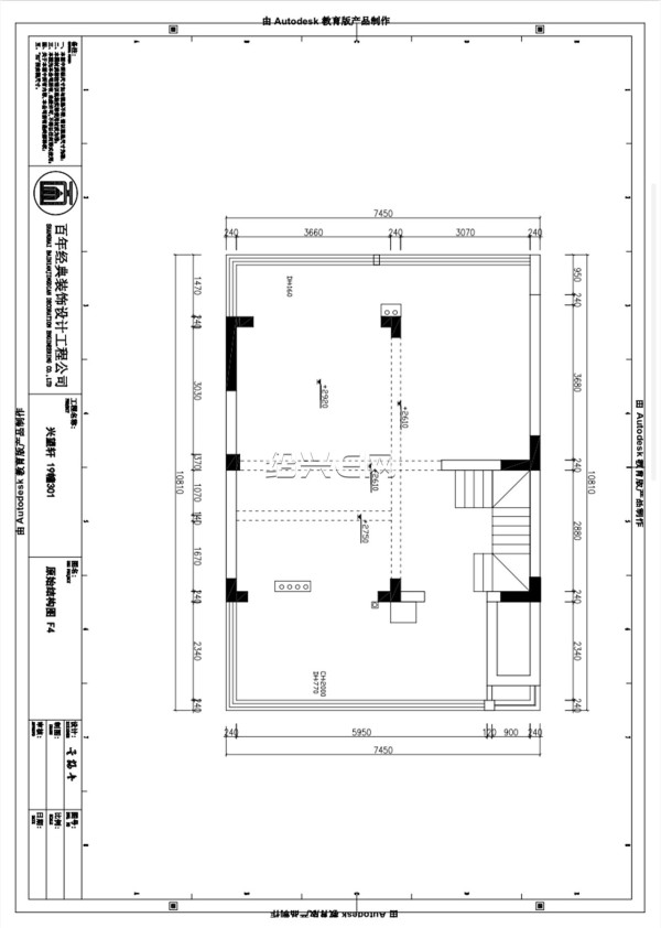
原始结构图
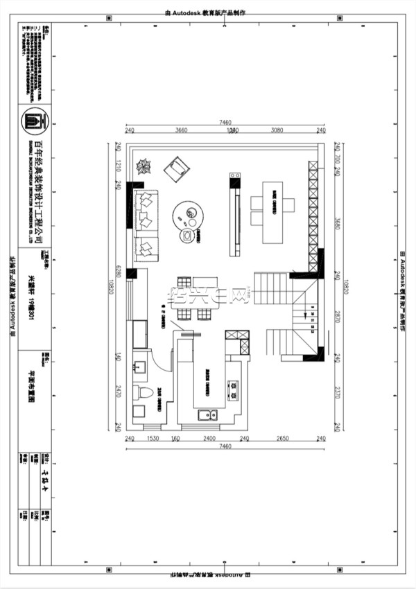
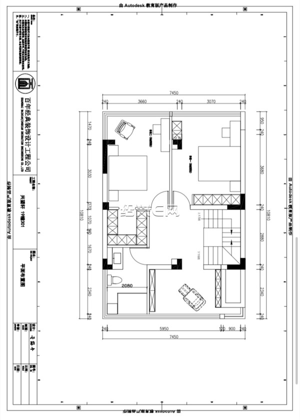
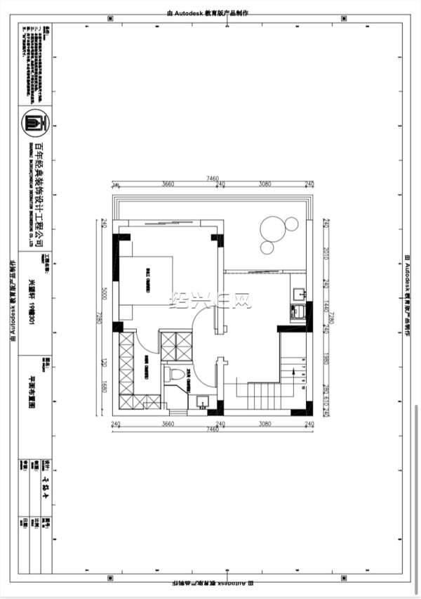
平面布置图
效果图
水电施工阶段
泥工贴砖完工阶段
木工施工阶段
油漆施工阶段
网友评论
百年经典小胡2025-05-05 21:14绍兴
原始结构图



百年经典小胡2025-05-05 21:15绍兴
平面布置图



百年经典小胡2025-05-05 21:18绍兴
效果图








百年经典小胡2025-07-02 18:18上海
水电施工阶段






百年经典小胡2025-09-21 15:11浙江
泥工贴砖完工照片







E网网友23446002025-09-21 21:08绍兴
回 第5楼(百年经典小胡)的帖子 百年经典小胡:泥工贴砖完工照片 (2025-09-21 15:11)
瓷砖很不错
百年经典小胡2025-11-08 16:39浙江
木工施工阶段










百年经典小胡02-08 19:03浙江
油漆施工照片











zlx0506前天 22:23绍兴
加油,后续上图
正在热议
1
全国还有比越城区最差的卫生环境吗?
03月24日1.3万阅读

2
35岁,到底该不该被叫阿姨?
03月26日2.2万阅读

3
成绩,真的比孩子还重要吗?
03月24日1.7万阅读

4
现在只有一种情况下的确不用买电车
03月23日3.1万阅读
5
加油站现状
03月22日2.5万阅读

6
给老丈人打工他却把工资打给我老婆
03月24日2.8万阅读
7
拔两颗大牙只收87元钱!这个医生要曝光
03月27日1万阅读

8
没存款的人到底该不该换电车?
03月25日1.7万阅读
9
开货车撞上保时捷,绍兴男子看到维修单后傻眼了
03月22日1.9万阅读

10
绍兴的现代4s店也倒了
03月26日2.4万阅读

11
女孩子的家长给女孩子买辆好车就算完成任务了
03月27日2.3万阅读
12
网上很火的城市排名
03月23日1.5万阅读

13
加油站今天都排长队了
03月23日2万阅读

14
泡饭配乌干菜,最落胃。
03月23日1.3万阅读

15
怎样才能摆脱前妻一家的纠缠
03月25日2.4万阅读
16
绍兴公交,七十岁以上,凭老年卡,不能免费乘车吗?
03月27日1.2万阅读

17
为什么觉得结婚还是谈恋爱的时候开心
03月25日1.2万阅读
18
路上电车尤其是特斯拉越来越多了
03月27日8884阅读

19
这年头,熟人也得小心提防啊,这不,隔壁一位大妈被骗子骗去了12万元
03月27日1.2万阅读
20
买房遇到了这种事,怎么办办了?
03月24日2.6万阅读

我来说两句...







